Almchalet Wieslhütte | Neu seit Sommer 2023
Unser Almchalet Wieslhütte liegt in herrlich sonniger und ruhiger Lage inmitten der Natur, etwas abgelegen am Gerlosberg auf einer wunderschönen Alm. Über einen Schotterweg ist sie mit dem PKW gut zu erreichen. Ein bergtaugliches Auto ist zu empfehlen. Von Zell am Ziller fahren Sie ca. 25 min. Sie suchen Ruhe? Dann ist unser Almchalet genau das Richtige. Mit einem wunderschönen Blick auf die Zillertaler-Bergwelt können Sie mal die Seele baumeln lassen. Die Wieslhütte lädt zu schönen Wanderungen und E-Bike-Touren in der Zillertal Arena ein.
Großzügig und komfortabel ausgestattetes Almchalet über 2 Etagen mit
3 Schlafzimmern für max. 9 Personen. Im Sommer finden Sie Ruhe in Mitten der Natur. Im Winter nur zu Fuß oder mit Tourenski erreichbar!

Ausstattung:
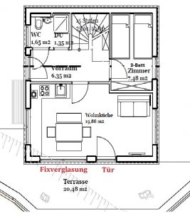
- ca. 75 m²
- 3 Schlafzimmer f. max. 9 Personen
- 2x SZ im OG mit Doppelbett und Schlafcouch und Bad mit Du und WC
- 1x SZ im EG mit Hochbett und Einzelbett
- 3x Badezimmer mit Dusche und WC, 1x Föhn
- Bettwäsche und Handtücher vorhanden
- Wohnraum/Küche mit gemütlicher Sitzecke, TV
- Pelletofen
- Kochecke mit E-Herd u. Bachofen
- Salz, Pfeffer, Zucker vorhanden
- Kühlschrank mit Gefrierfach
- Getränkekühlschrank
- Filterkaffeemaschine – Filter und Kaffeepulver vorhanden
- Wasserkocher
- Spülmaschine
- Terrasse und Garten mit Grill, Sitzecke
- Parkplatz
- Fahrradunterstellplatz
Fotos – Wieslhütte
Grundrisse – Wieslhütte
Erdgeschoss

Obergeschoss



















